StartseiteBüroProjekteJobsLinks

Projekte:

Wohnungsbau

Industrie / Verwaltung

Einzelhandel

Wohnungsbau:

Karl-Leder-Platz 28

Einfamilienhaus, Königsdorf

Einfamilienhaus, Großhadern

Mehrfamilienhaus, Zorneding

Allgemein:

Startseite

Impressum-Datenschutz

Kontakt

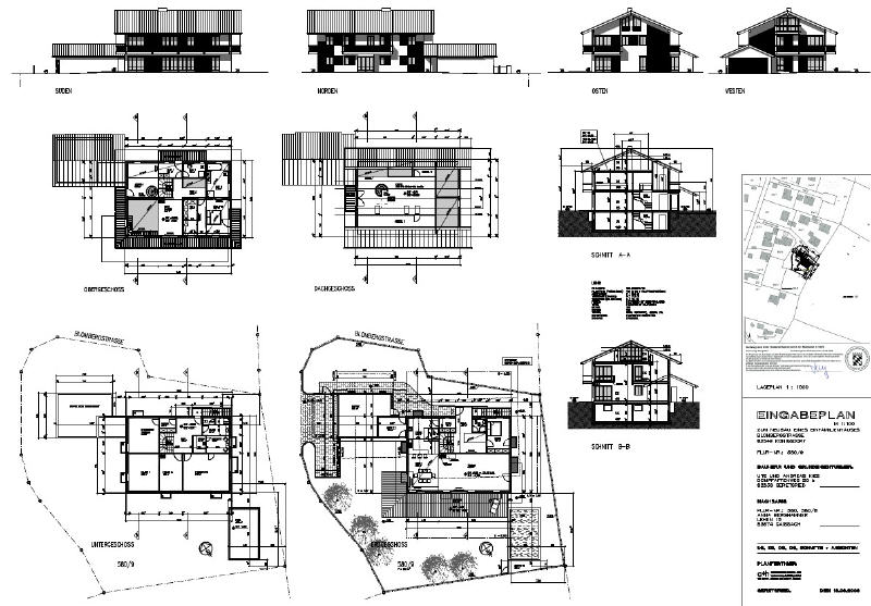
Neubau eines Einfamilienhauses

Bauherr:

Familie Kies

Umbauter Raum:

1.846,05 m^3;

Nutzfläche:

286 m^2 Wohnfäche + 133,20m^2 Nutzfläche

Insgesamt: 419,20 m^2

Fertiggestellt.

Bilder: